Frístundahús vesturland
Staðurinn
Gróðurilmur fyllir loftið – birki, lyng og gullinmura. Vorið er komið. Silungur gárar sléttan vatnsflötinn. Hneggjandi hrossagaukur flýgur í hringi yfir óðali sínu, hávær stelkur spígsporar í fjörunni og ugla svífur lágflug í leit að músum handa sér og ungum sínum. Lúpína breiðir úr sér yfir viðkvæman holtagróður og lúsmý nartar kurteislega í þá sem leið eiga um.
Dalurinn er umlukinn bröttum fjöllum og opnast til vesturs. Stöðuvatnið fyllir dalbotninn. Í fjarska mætast haf og himinn við sjóndeildarhringinn. Norðurljósin dansa á vetrarhimninum og speglast í ísilögðu vatninu. Austanátt er ríkjandi vindátt, en síðdegis á sólríkum sumardögum blæs svalandi hafgolan úr vestri. Veðrið er síbreytilegt og óútreiknanlegt. Hringrás náttúrunnar endurtekur sig, vetur, sumar, vor og haust.
Hugmynd og samþætting landslags
Lerkiklædd timburhús á steyptum grunni taka sér stöðu í kjarri vaxinni hlíð sem hallar til suðvesturs að vatninu. Umhverfið mótar húsin og nýr staður verður til sem veitir skjól og fleiri sumardaga. Húsin mynda samspil innri og ytri rýma við umhverfið og efnisnotkun fellur að landinu. Húsin ramma inn sjónarspil náttúrunnar og útsýni, sem er síbreytilegt og kemur stöðugt á óvart alla daga ársins.
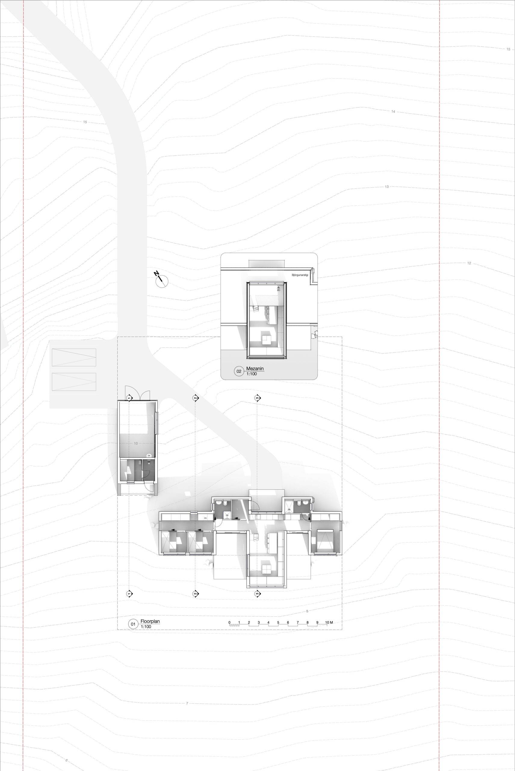
Aðalhúsið er í sömu hæðarlínu í allri sinni lengd, um 50 metra frá vatninu. Þvert á hlíðina stendur geymsluhús með gufubaði. Húsin tvö, ásamt lækjarkvísl sem rennur úr fjallinu fyrir ofan í leysingum, mynda aðkomuhlað. Handan lækjarins er lítil laut og hallamýri umlukin birkikjarri. Frá aðalhúsinu og gufubaðinu er horft yfir vatnið og til fjalla í fjarska. Austan og vestan við stofuna, sem teygir sig út frá húsinu í átt að vatninu, eru skjólgóðar verandir sem opnast til suðurs, morgunverönd og síðdegisverönd. Báðar eru að hluta undir þaki sem veitir aukið skjól. Öll herbergi og stofa snúa að vatninu, en eldhús, snyrtingar, skápar og inngangur snúa að fjallinu.
Efnisval og sjálfbærni
Frístundahúsið er heilsárshús, vel einangrað og upphitað með gólfhita í steingólfi. Innveggir og loft eru klædd ómeðhöndluðum asparþiljum sem gefa rýmunum hlýjan og náttúrulegan blæ. Hljóðísogsdúkur í lofti stofu og herbergja bætir hljóðvist. Innbyggð húsgögn og innréttingar auka nýtingu og skilvirkni innra skipulags.
Þök stofu og geymsluhúss eru lögð læstri sinkklæðningu. Sinkplötur eru einnig notaðar í áfellur þakkanta og vatnsbretti undir og yfir gluggum. Lynggróður er á þökum langbygginar. Ytri klæðning húsanna er úr ómeðhöndluðu lerki sem veðrast náttúrulega með tímanum.
Efnisval einkennist af náttúrulegum, slitsterkum og viðhaldsvænum efnum. Leitast er við að lágmarka sjónræn áhrif á landslagið þannig að mannvirkin eldist fallega og verði hluti af umhverfinu.