512 4200 info@tst.is

Safnaðarheimili Ástjarnarkirkja

Church hall

Úr greinargerð:
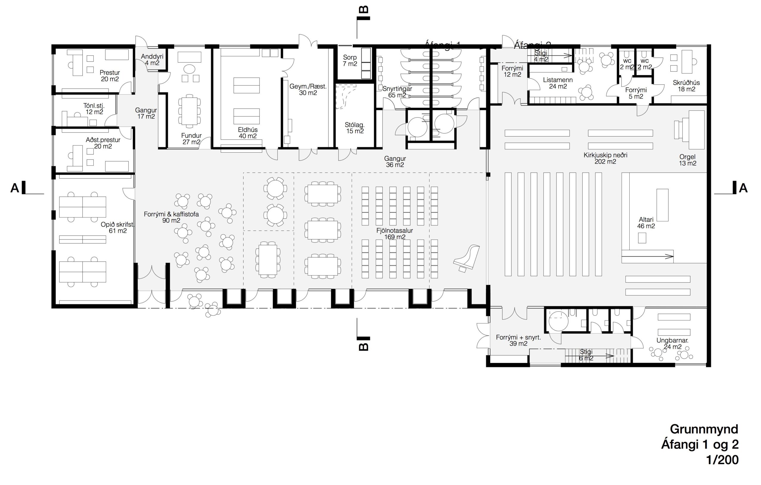
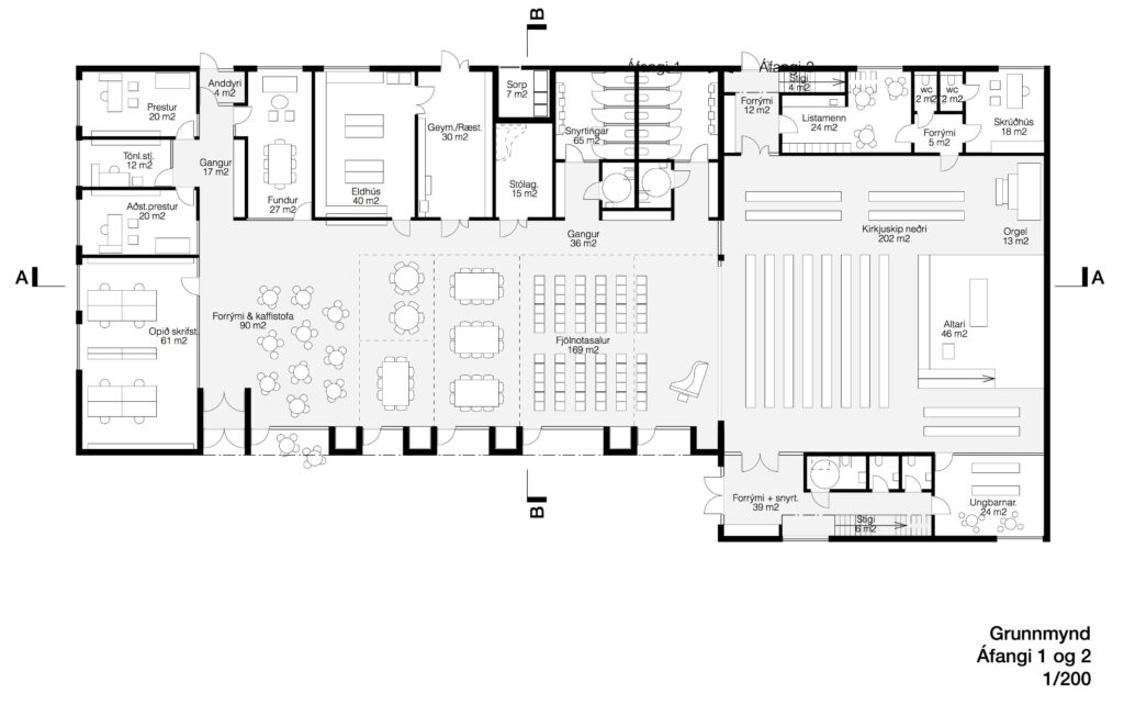
Sóknarnefnd Ástjarnarkirkju efndi til opinnar hönnunarsamkeppni í samstarfi við Arkitektafélag Íslands og óskað var eftir hugmyndum um hönnun safnaðarheimilis og skipulag lóðar þar sem innbyrðis tengslum safnaðarheimilis og fyrirhugaðrar kirkju væru gerð skil. Í fyrri áfanga mun safnaðaheimili rísa og kirkjubygging í síðari áfanga. Lóð Ástjarnarkirkju er á mörkum íbúðarbyggðar og verslunar- og þjónustusvæðis. Sérstaða kirkjulóðar felst í staðsetningu, umhverfi og nánum tengslum við hverfisverndað hraunið. 

Húsakostur safnaðarheimilis og kirkju skal vera sveiganlegur og bjóða upp á fjölbreytta notkunarmöguleika í nútíð sem framtíð. Notendavæn fjölnota bygging fyrir fjölbreytta starfsemi safnaðarins. Safnaðarheimilið mun þjóna hlutverki kirkju fyrst um sinn. Safnaðarsalurinn er fjölnotasalur, sem skipta má upp í allt að fimm smærri sali, með færanlegum veggeiningum auk þess má sameina safnaðarsalinn forsal og kaffihúsi í eitt stórt rými. 

Yfirbragð innviða safnaðarheimilisins er bjart og hlýlegt. Samspil ljóss og skugga gegna mikilvægu hlutverki, hliðarbirta kemur frá gluggum til suðurs og ofanbirta um þakglugga, sem mynda óreglulegt mynstur í þakfletinum. Austurveggurinn er stór gluggaveggur sem síðar mun opnast inn í kirkjurýmið. 

Sveiganleiki með tilliti til áfangaskiptingar felst í því að safnaðarheimilið getur staðið sem fullkláruð bygging, þar til kirkjan verður byggð. Efnisval miðast við endingargóð og viðhaldsvæn byggingarefni, sem eru ákjósanleg með tilliti til umhverfis- og vistfræðiþátta.

Ár 2014
Staður Hafnarfjörður
Stærð 600-900m2
Verkkaupi Ástjarnarkirkja
Verkform Samkeppni